软考备考每日试题(250204)
小羊
2025-02-04 00:01:22每期慧翔天地小编都会附上5~10道软考综合测试题,以帮助大家达到练习的效果,本期软考试题答案会附加在下一期的结尾。大家如果想了解2025年软考考试报考流程、报考时间、报考条件、报考费用、软考报考资格测评等等均可访问站内进行了解。
软考中高项备考刷题交流QQ群:221801769(点击一键加群)
1、以下()不是产品融合的例子。
A.普通机床加上数控系统之后就变成了数控机床
B.传统家电采用了智能化技术之后就变成了智能家电
C.普通飞机模型增加控制芯片之后就成了??胤苫?/p>
D.计算机管理方式改变了传统手工台账,极大地提高了管理效率
2、()不属于制定项目章程的输入。
A.商业需求
B.合同
C.事业环境因素
D.需求文件
3、假设甲、乙二人合作开发了某应用软件,甲为主要开发者。该应用软件所得收益合理分配后,甲自行将该软件作为自己独立完成的软件作品发表,甲的行为()。
A.不构成对乙权利的侵害
B.构成对乙权利的侵害
C.已不涉及乙的权利
D.没有影响乙的权利
4、在索赔通知书发出后的()内,索赔方需向监理工程师提出延长工期和/或补偿经济损失的索赔报告及有关资料。
A.14天
B.28天
C.42天
D.56天
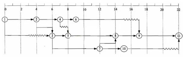
5、某项目的时标网络图如下(时间单位:周),在项目实施过程中,因负责实施的工程师误操作发生了质量事故,需整顿返工,造成工作4-6拖后3周,受此影响,工程的总工期会拖延()周。

A.0
B.1
C.2
D.3
(250203)答案
6、D
7、B
8、A
9、A
10、C




PM、PMP、PMO分别都是什么 以及三者的关系
pmp证书是不是烂大街了
PMP证书在国内挂靠一年多少钱
23个项目管理经典案例——一个成功的项目管理
手把手教你excel项目进度管理表甘特图
pmo是什么职位 有哪些工作职责
PMP十大培训机构哪个好
什么是ACP?ACP的含金量高吗?